À la lisière

Construction d’une maison « farmhouse » sur un terrain boisé du Vieux-Boucherville

Quelle chance ! La famille détenait depuis toujours le dernier terrain non bâti de la rue, en cul-de-sac près de la voie ferrée. Le projet : y ériger une maison de deux étages, discrète et bien ancrée dans ce paysage périurbain de maisons canadiennes, de cottages et de bungalows aux silhouettes variées. Les arbres matures et le caractère naturel du site orientent la conception, qui mise sur les vues et s’inspire du vocabulaire bucolique de nos campagnes.

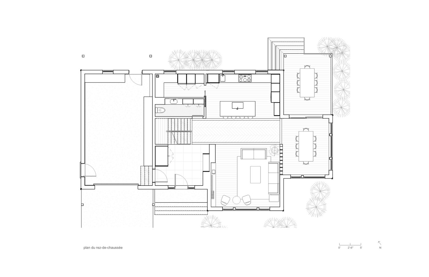
Tournée vers la rue, la maison s’organise autour d’un volume principal en « L », qui rassemble les espaces de vie et les chambres. Deux volumes annexes – la salle à manger et le garage – viennent s’y adosser, ancrant la composition dans le site. Sa matérialité lumineuse s’inspire du vocabulaire vernaculaire du Vieux-Boucherville : parement de bois horizontal peint en blanc, toiture de tôle d’acier à baguette et ouvertures rythmées.

L’entrée généreuse s’ouvre sur un escalier double hauteur dans l’axe de la salle à manger généreusement vitrée sur la lisière boisée. La grande cuisine ouverte sur le séjour est habillée d’armoires blanches pleine hauteur. Les espaces intérieurs, clairs et spacieux, rappellent l’esprit des fermes : recoins chaleureux, circulation simple et relation directe avec l’extérieur.

Entre nature et confort, la maison revisite l’esprit farmhouse : généreuse en lumière, ouverte sur la verdure et tournée vers les espaces extérieurs, elle offre tout ce qu’on attend d’une demeure familiale en première couronne !

Architecture

L. McComber - architecture vivante

Équipe

Mélanie Mousseau, Olivier Lord, Laurent McComber

Client

Particulier

Année

2024

Location

Boucherville

Superficie

2 500 pc